Dokumentacja 2D CAD
GENERUJEMY BARDZO DOKŁADNE I SZCZEGÓŁOWE RZUTY PIĘTER, PRZEKROJE ORAZ WIDOKI ELEWACJI
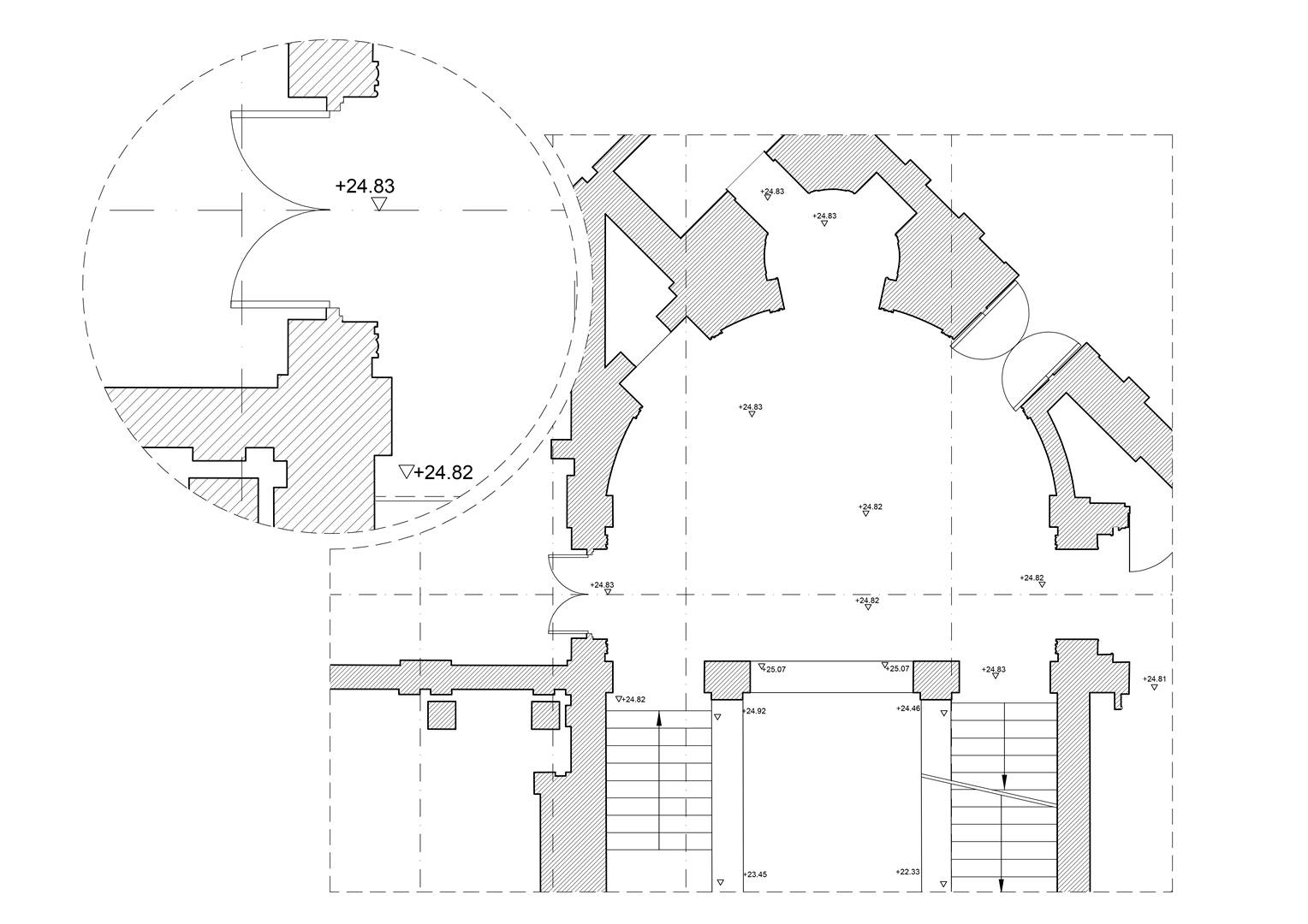
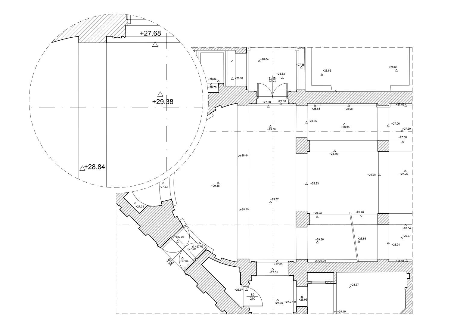
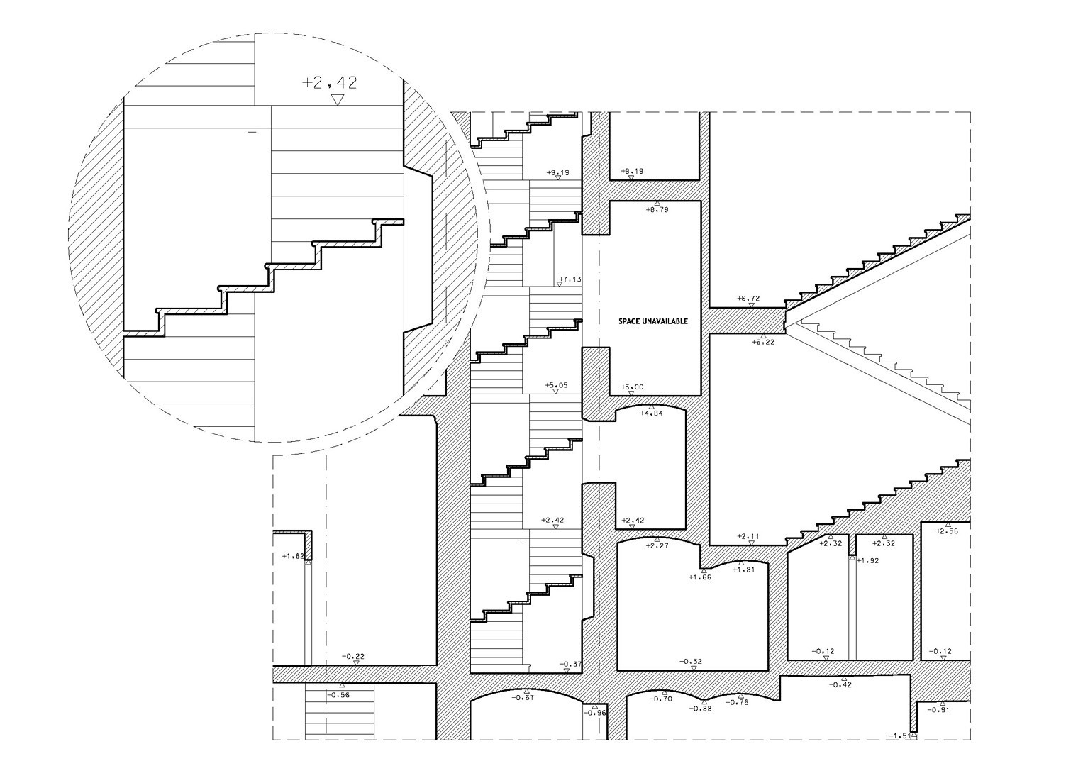
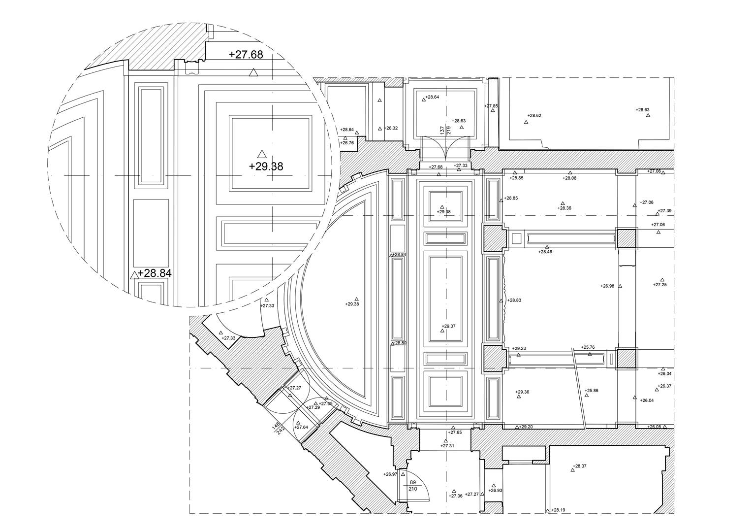
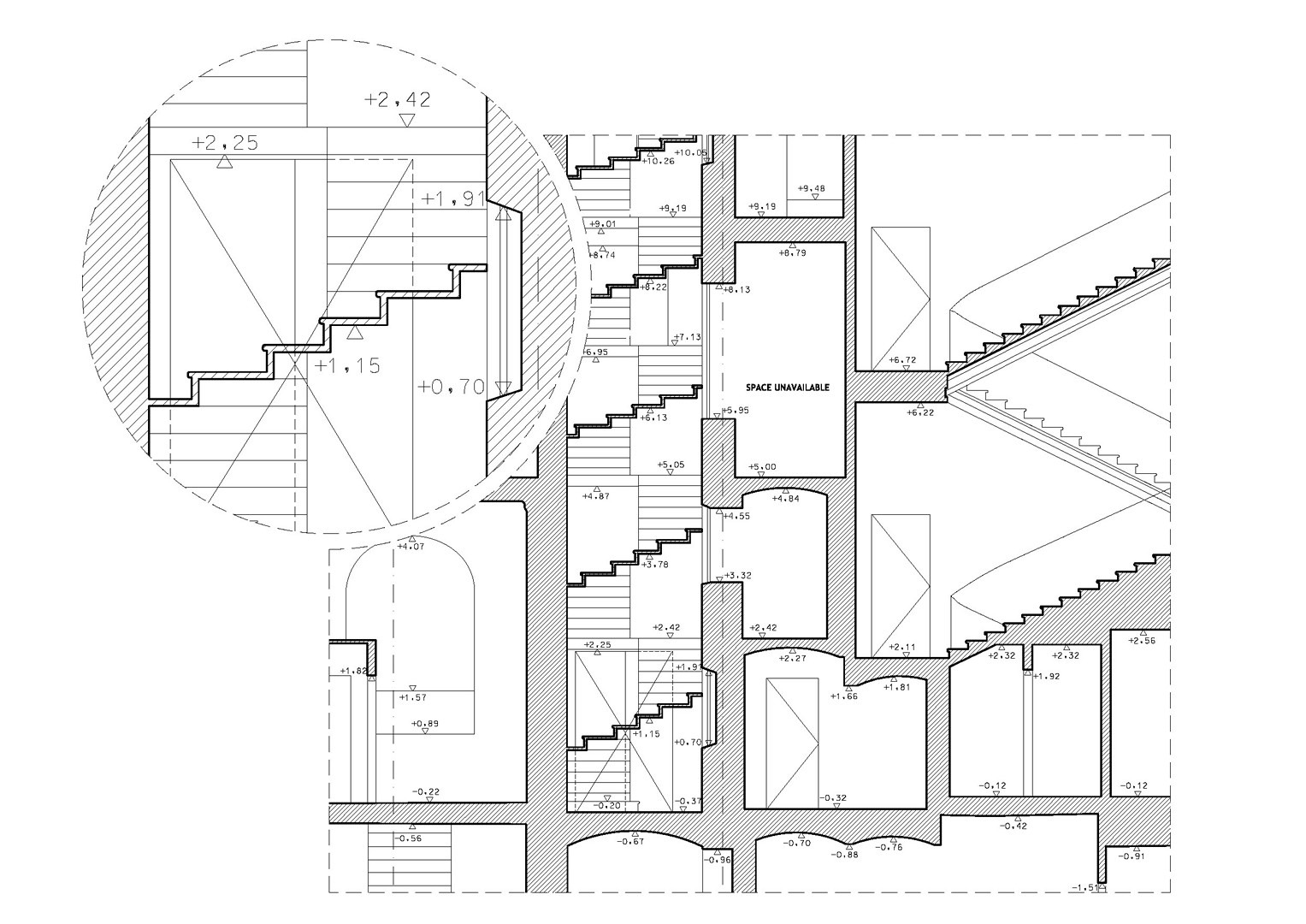
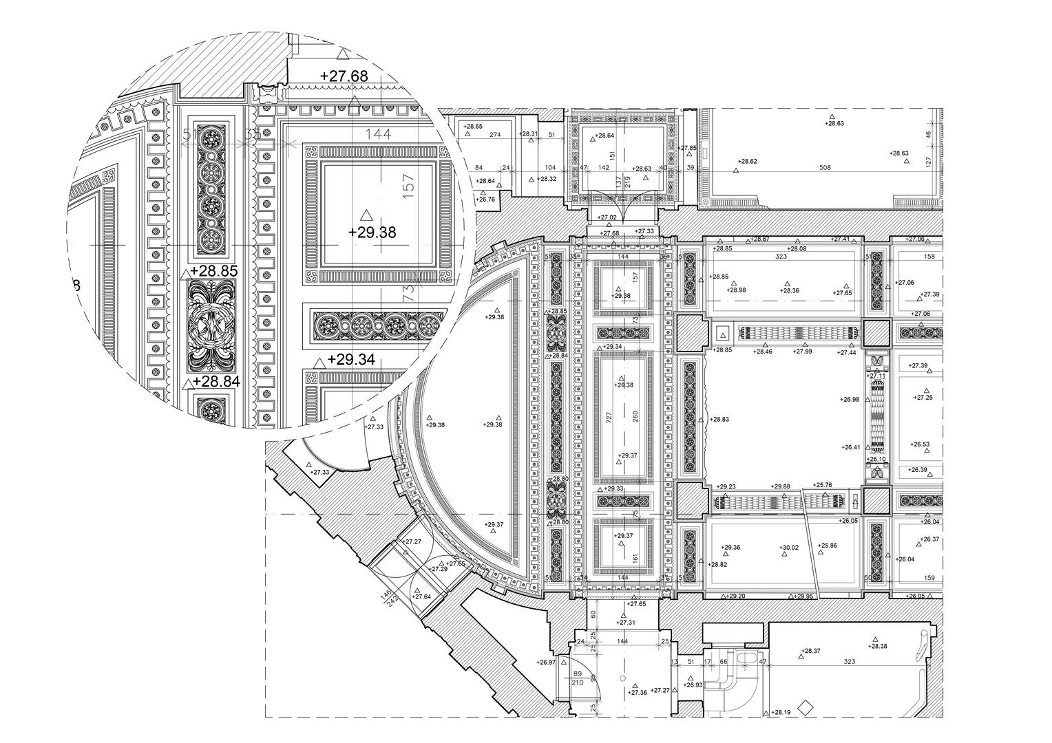
Przygotowujemy rysunki i wyploty 2D na podstawie chmury punktów, głównie plany kondygnacji, przekroje (sekcje), widoki elewacji.
W porównaniu do standardowych metod badawczych (Disto, taśma miernicza lub tachimetr) nasze rysunki wykonane na podstawie chmury punktów, generowanej podczas skaningu laserowego, mogą być o wiele bardziej szczegółowe i dokładne, niż powstałe na podstawie tradycyjnych pomiarów.
Gwarantujemy dużą dokładność sięgającą nawet 10 mm dla bardzo dużych obiektów.
Wektoryzowanie obiektów o dużym poziomie szczegółowości jest procesem bardzo czasochłonnym. Dlatego na początku należy sprecyzować oczekiwany poziom wyrysowanego detalu (określić poziom szczegółowości) bez względu na to czy jest to obiekt zabytkowy czy prosta zabudowa.
Dokumentacja 2D to jedna z naszych usług oferowana w ramach wykonywania skaningu laserowego. Skanowanie 3D jest technologią, która umożliwia szybkie i precyzyjne pokrycie danego obiektu miliardami punktów. Skanery mają zdolność pomiaru nawet 2 milionów punktów na sekundę. Proces skanowania może również uwzględniać wykonanie serii zdjęć, wówczas uzyskane dane – chmura punktów będzie zawierać rzeczywiste kolory RGB. Dane można zaimportować do różnych programów i wykorzystać do modelowania, czyli wektoryzacji oraz wielu różnych analiz. Mamy duże doświadczenie w realizacji projektów opartych na obróbce chmury. Podstawowe opracowania to: dokumentacja CAD, w tym 2D (przekroje, rzuty, rysunki elewacji) i 3D, a także modele BIM, modele instalacji w oprogramowaniach PDMS, CADWORX I OPEN PLANT czy modele MESH 3D, oprócz geometrii posiadające dodatkowe atrybuty.
Dokumentacja 2D – dlaczego warto z niej korzystać?
Dokumentacja 2D CAD uzyskana za pomocą skanowania laserowego jest bardziej szczegółowa i dokładna w porównaniu z tradycyjnymi metodami pomiarowymi. Eliminuje też problemy związane z niesymetrycznością obiektu, brakiem kątów prostych czy zmienną grubością ścian, ponieważ daje pełną kontrolę nad opracowaniem na etapie wektoryzacji.
Dzięki pozyskaniu kompleksowych danych pomiarowych można uzyskać wiele cennych informacji na każdym etapie inwentaryzacji obiektu.
Kiedy warto skorzystać z dokumentacji CAD 2D wykonanej przy pomocy skanowania laserowego?
- Gdy dostęp do obiektu inwentaryzacji jest ograniczony.
- Gdy czas na prace pomiarowe jest ograniczony.
- Gdy obiekty są zabytkowe lub bogato zdobione.
- Gdy trzeba poprawić błędną lub uzupełnić niekompletną dokumentację obiektu.
- Gdy potrzebujesz precyzyjnej wiedzy na temat zniekształceń obiektu.
Dokumentacja CAD 2D w ofercie 3Deling
Przygotowujemy rysunki i wyploty 2D na podstawie chmury punktów, głównie plany kondygnacji, przekroje (sekcje), widoki elewacji.
W porównaniu do standardowych metod badawczych (Disto, taśma miernicza lub tachimetr) nasze rysunki wykonane na podstawie chmury punktów, generowanej podczas skaningu laserowego, mogą być o wiele bardziej szczegółowe i dokładne, niż powstałe na podstawie tradycyjnych pomiarów.
Gwarantujemy dużą dokładność globalną, sięgającą nawet 10 mm dla bardzo dużych obiektów.
Wektoryzowanie obiektów o dużym poziomie szczegółowości jest procesem bardzo czasochłonnym. Dlatego na początku należy sprecyzować oczekiwany poziom wyrysowanego detalu (określić poziom szczegółowości) bez względu na to, czy jest to obiekt zabytkowy, czy prosta zabudowa.
Oferujemy naszym klientom możliwość określenia poziomu szczegółowości rysunków zgodnie z ich indywidualnymi potrzebami. Dzięki temu mogą dostosować proces tworzenia dokumentacji do swoich wymagań. Wykonujemy dokumentację 2D CAD w trzech poziomach szczegółowości przedstawionych poniżej:
- podstawowe otwory w ścianach,
- rysunek kontekstowy,
- rysunki szczegółowe.
Jeśli chcą Państwo skorzystać z naszych usług, zapraszamy do kontaktu, by omówić szczegóły opracowania i wycenę.











