LOKALIZACJA
Gniew, Polska
SPRZĘT POMIAROWY
skaner Riegl VZ-400, tachimetr Leica TCRA 1101
CZAS OPRACOWANIA
8 dni w terenie, 45 dni opracowania w biurze
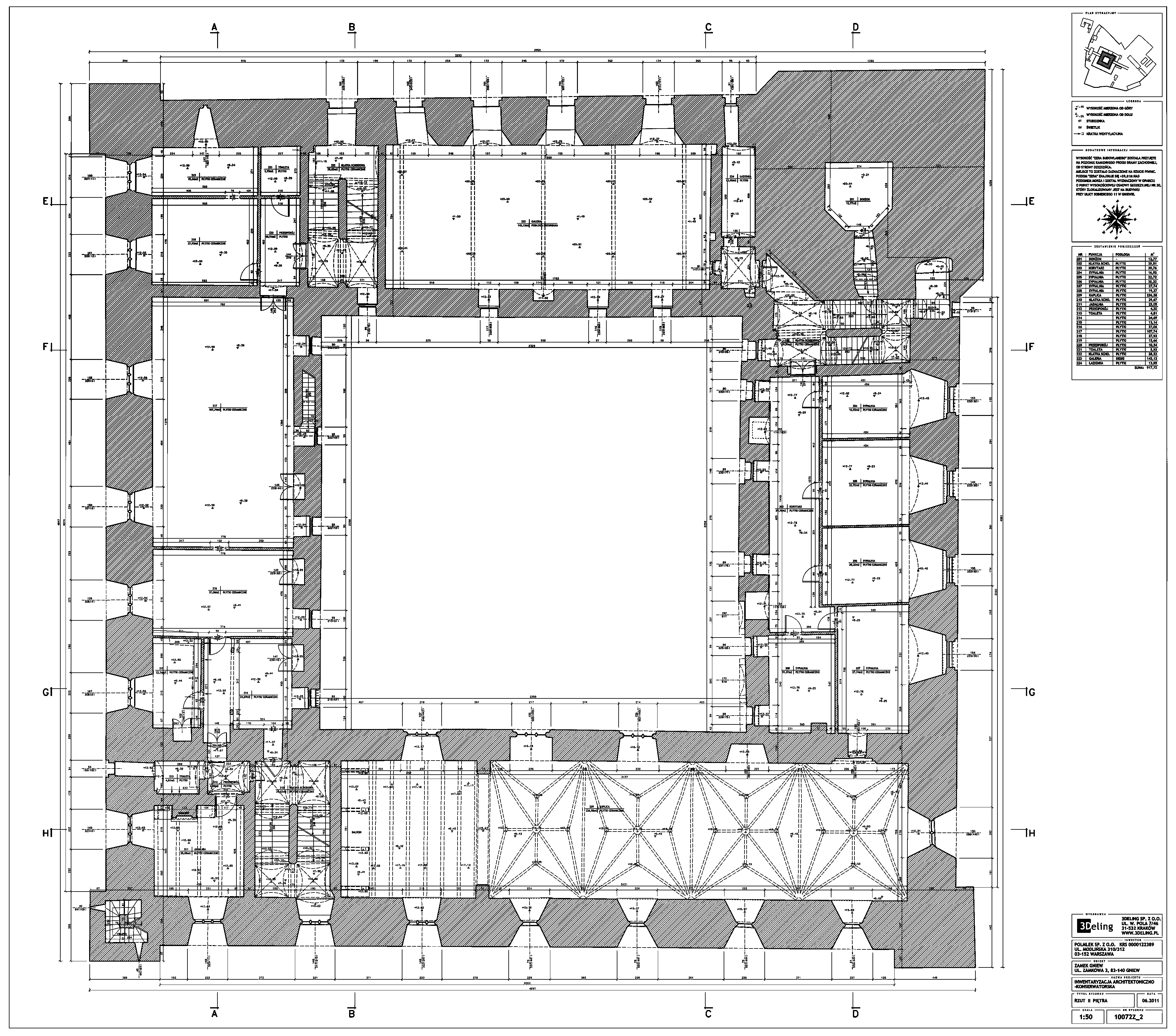
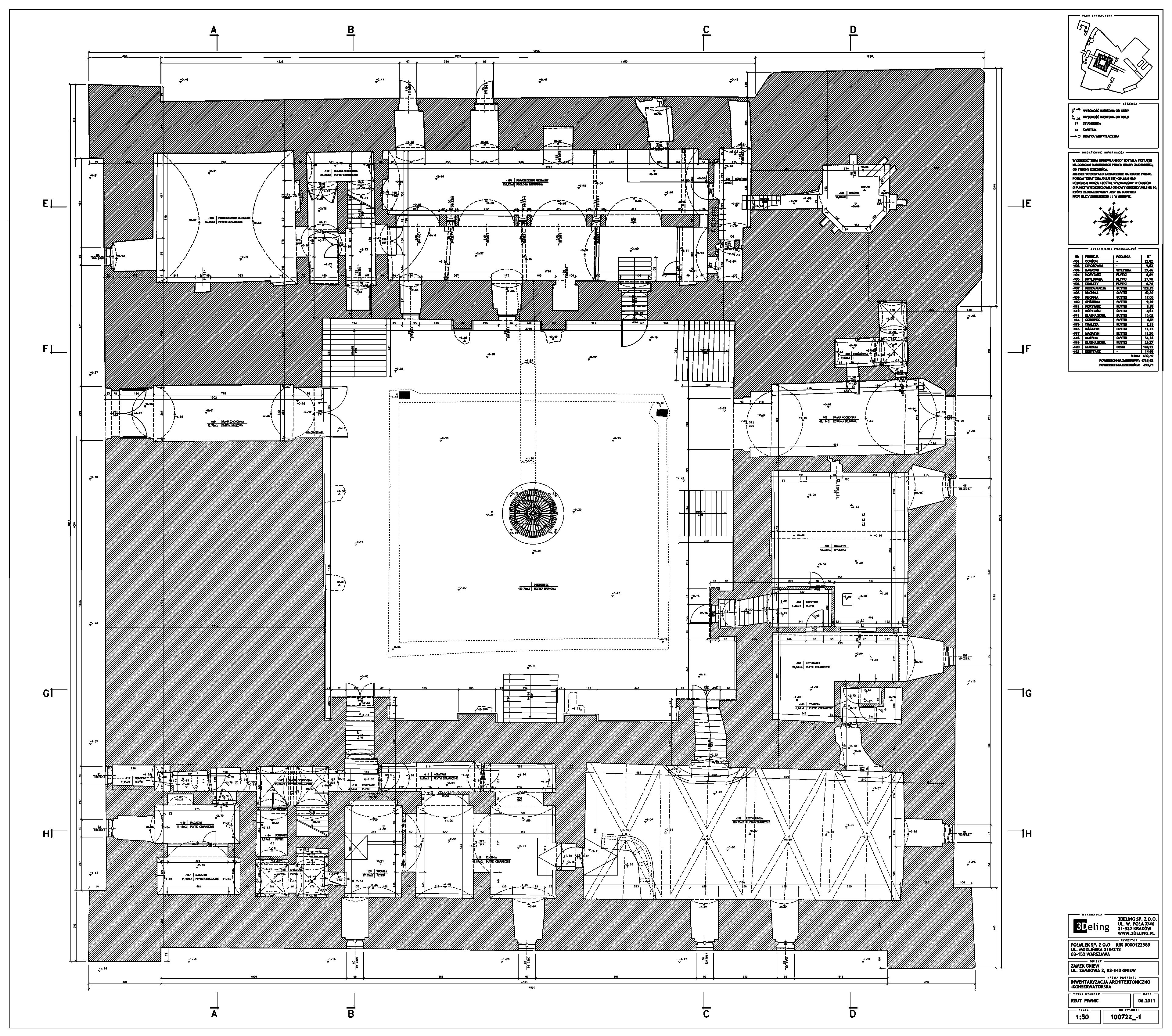
PRODUKT KOŃCOWY
połączona chmura punktów, TruView, plany, rzuty, sekcje i rysunki elewacji
Skaning laserowy i dokumentacja Zamku Gniew
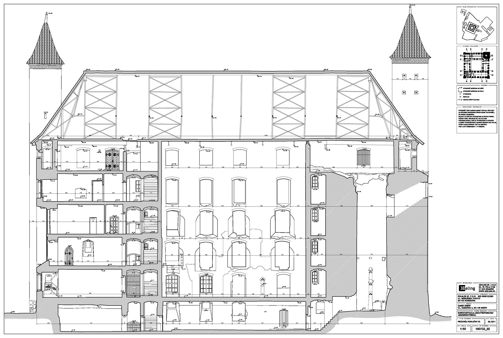
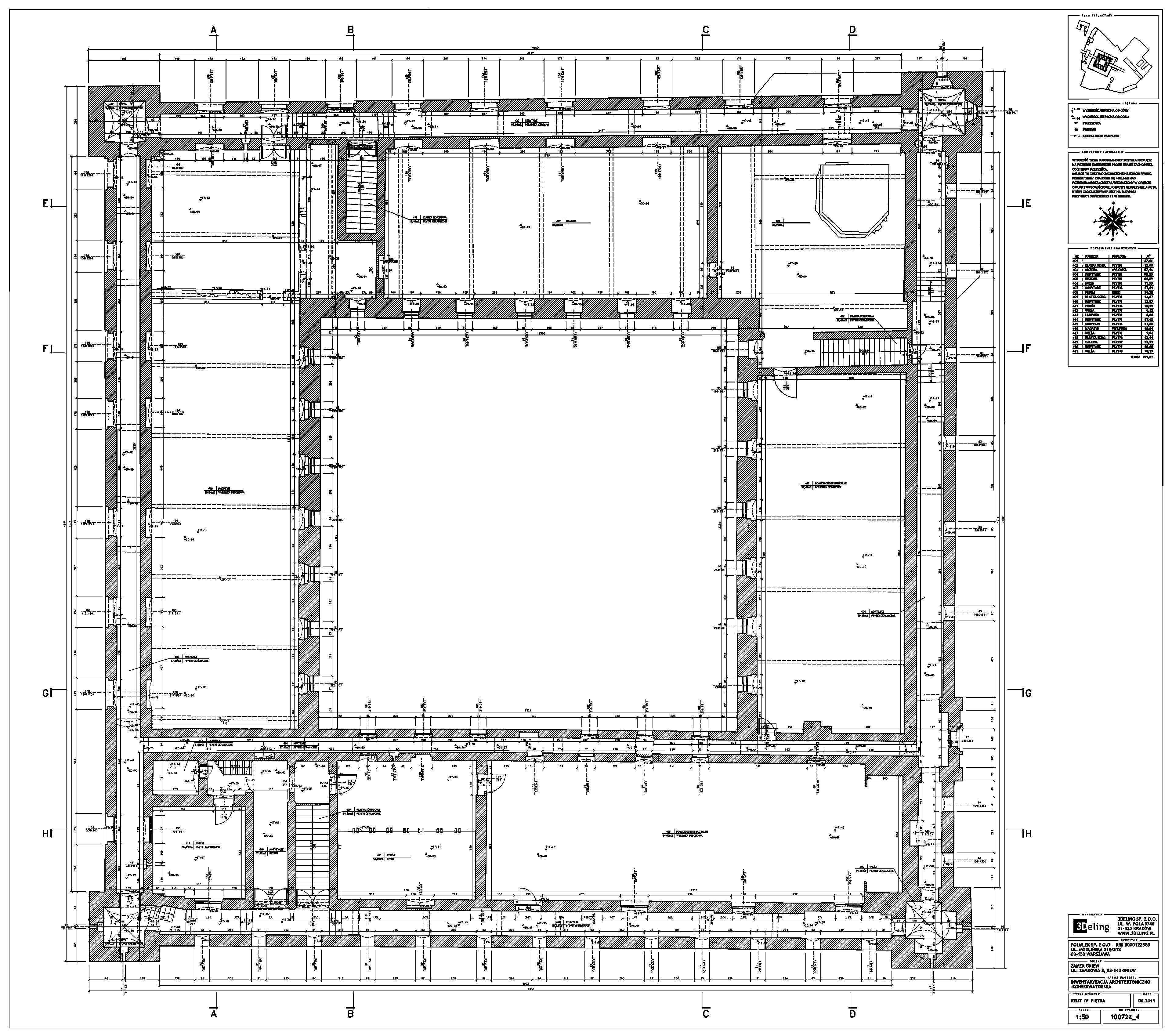
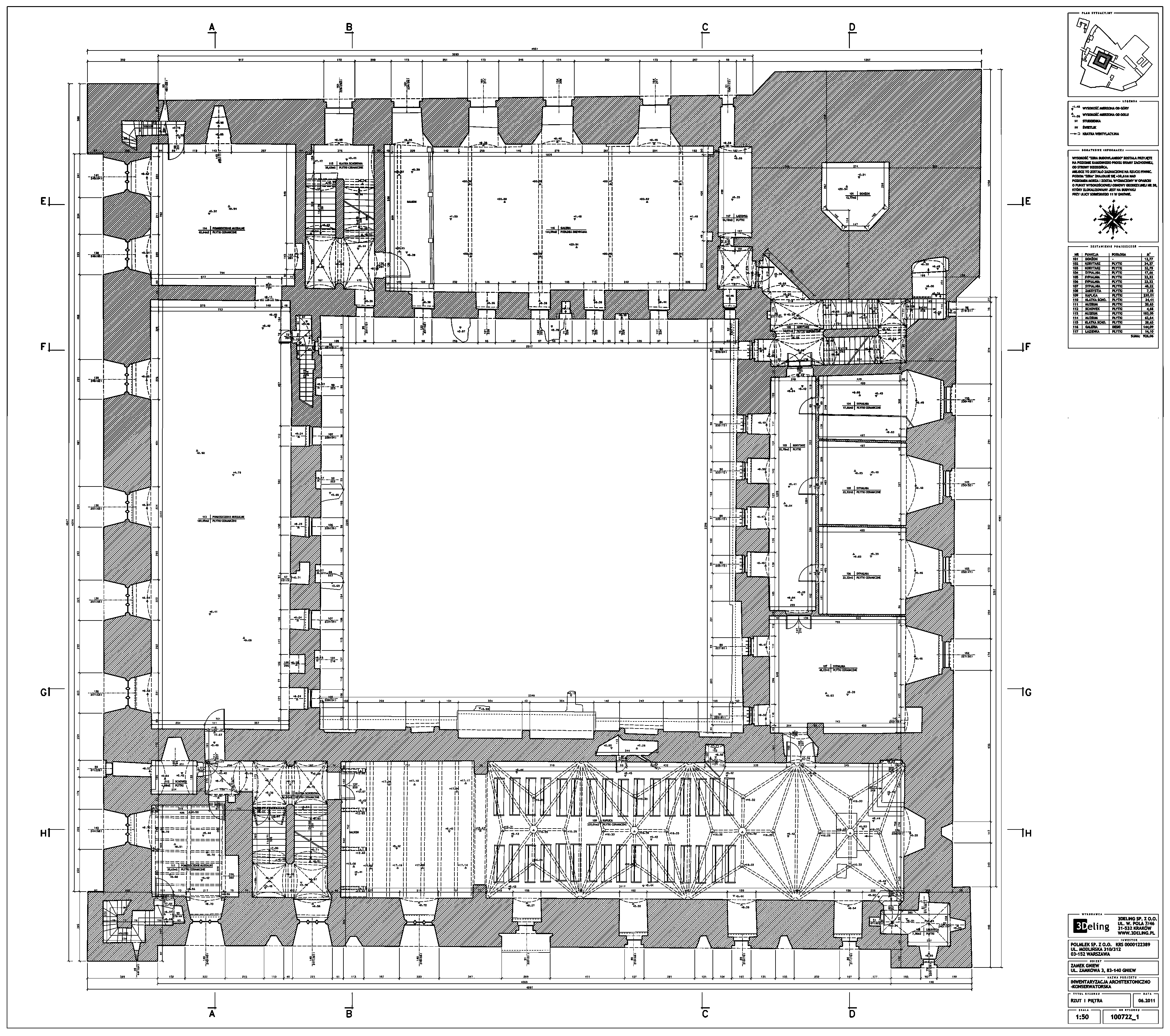
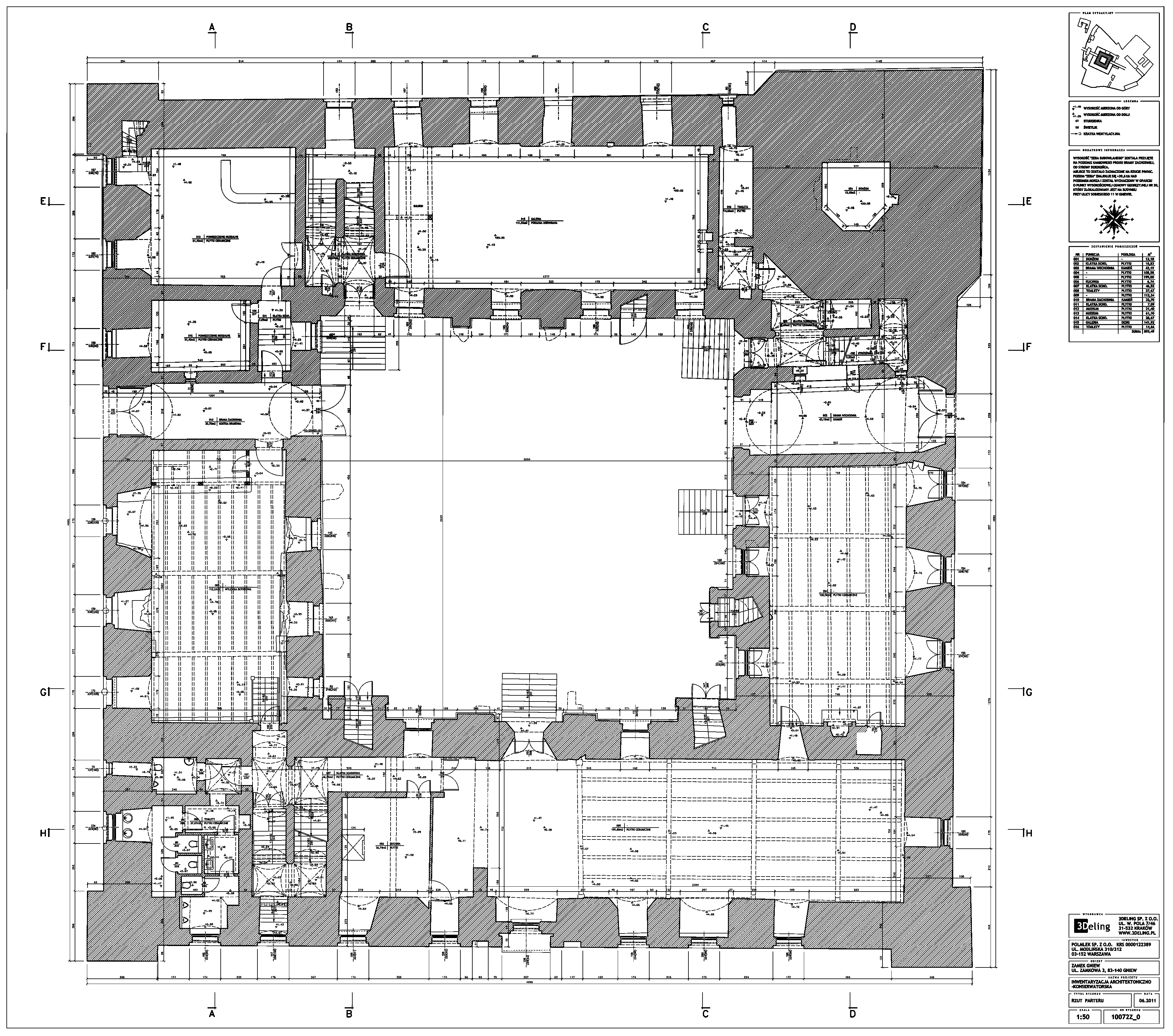
Na początku 2011 roku rozpoczęliśmy projekt skanowania laserowego 3D średniowiecznego Zamku w Gniewie. Obiekt został zeskanowany w całości, łącznie z piwnicami i strychem. Pojedyncze skany (w sumie około 800 pozycji skanera) zostały połączone w jednym układzie współrzędnych. Uzyskana chmura punktów została wykorzystana do stworzenia pełnej dokumentacji inwentaryzacyjnej 2D zamku. Wykreśliliśmy precyzyjne rzuty, sekcje i rysunki elewacji.
Dzięki zastosowaniu skaningu laserowego udało nam się zebrać pełną informację przestrzenną o tym ogromnym zabytkowym budynku. Dokładność skanowania (maksymalny błąd 5mm) została potwierdzona wynikami raportów z kontroli punktów i rejestracji skanowania. Rysunki 2D były wykonane w programowaniu Bentley MicroStation V8i z nakładką Leica CloudWorx, która pozwoliła wyświetlić chmurę punktów w środowisku CAD.
Kategorie:
































