Poziomy szczegółowości 2D CAD - LOD
DLA KAŻDEGO OPRACOWANIA 2D KONIECZNE JEST OKREŚLENIE POZIOMU SZCZEGÓŁOWOŚCI RYSUNKU JUŻ NA ETAPIE WYCENY
Inwentaryzacja architektoniczna na podstawie chmur punktów, której wynikiem jest dokumentacja 2D może być wykonana szczególnie dokładnie i szczegółowo. Jedynym limitem o jaki się ocieramy jest dokładność samej chmury punktów. Dla większości zastosowań architektonicznych subcentrymetrowa dokładność nie ma znaczenia, co więcej bywa często problematyczna. Przykładowo większość ścian musi być obrazowana wielo-wierzchołkową polilinią, pojawia się nieregularność wymiarów okien, niezależność ścian na poszczególnych piętrach lub też niespójność wymiarów dla tych samych elementów na różnych projekcjach (rzut i przekrój).
Ważne, aby na etapie wyceny ustalić jakie są wymagania oraz jakie elementy są istotne dla konkretnego projektu. Szczegółowość i dokładność jest proporcjonalna do czasu potrzebnego na opracowanie, co natomiast wpływa bezpośrednio na budżet.
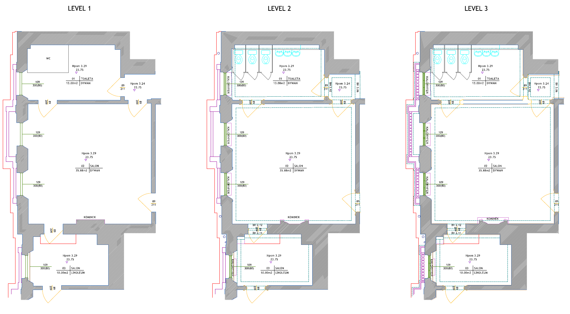
Poniżej prezentujemy trzy poziomy szczegółowości dokumentacji 2D. Podobnie jak dla BIM kategoryzacja została wykonana arbitralnie, nie należy się jej trzymać ściśle. Możemy generować rysunki dla poziomu 1, ale z podwyższonym detalem dla konkretnego obszaru czy elementu. Ważne, aby informacja o tym co jest istotne była do na przekazana.
POZIOM 1
Opracowanie przedstawiające podstawowe informacje o konstrukcji obiektu.
Zwykle sporządzane w skali 1: 100 lub 1:200. Do skali oprócz samych szczegółów dostosowana jest też wielkość tekstów dla elementów opisowych.
Przedstawiają główne elementy konstrukcyjne budynku: ściany, okna, drzwi, stopnie, kolumny wraz z podstawową informacją opisową.
Elementy są pokazane w sposób uproszczony i zgeneralizowany.
Dokumentacja nie przedstawia elementów dekoracyjnych oraz wyposażenia.
W przypadku elewacji można wykonywać rysunki o maksymalnym uproszczeniu, które są wykorzystywane do analiz nasłonecznienia. Zawierają tylko zarys budynku wraz z otworami.
POZIOM 2
Najczęściej wykonywane opracowania.
Zwykle sporządzone w skali 1: 50 lub 1:100. Do skali oprócz samych szczegółów dostosowana jest też wielkość tekstów dla elementów opisowych.
W opracowaniach LOD2 przedstawiona jest pełna struktura obiektu wraz z elementami stale związanymi z budynkiem.
Zarówno treść wektorowa jak i opisowa jest uszczegółowiona w stosunku do LOD1.
Uszczegółowienie obejmuje elementy typu: parapety, barierki, sanitariaty, kaloryfery, ścianki działowe, wbudowane szafy, kominki.
Dodatkowo w przypadku rzutów opracowanie może być poszerzone o podstawowe informacje dotyczące konstrukcji sufitów.
Elementy dekoracyjne są pomijane lub pokazywane w sposób maksymalnie uproszczony.
POZIOM 3
Najbardziej szczegółowe opracowanie obiektu, ukazujące wszystkie elementy konstrukcyjne i pozostałe bez uproszczeń i generalizacji.
Zazwyczaj wykonywane w skali 1:50 do 1:20. Do skali oprócz samych szczegółów dostosowana jest też wielkość tekstów dla elementów opisowych
Treść opracowania może być poszerzona o kable, kontakty, włączniki, listwy przypodłogowe.
Elementy dekoracyjne typu gzymsy, kominki, płaskorzeźby pokazane są w maksymalnym odwzorowaniu szczegółów.
Opcjonalnie pokazywane są fugi dla poszczególnych kamieni czy cegieł wraz z uszkodzeniami i ubytkami. Jednak jeśli wchodzimy w taki szczegół opracowania to sugerujemy zamawianie wysokiej rozdzielczości zdjęć metrycznych ortofotoplanów.




