LOKALIZACJA
Toruń, Polska
SPRZĘT POMIAROWY
skaner Z+F Imager 5006, tachimetr TCRA1101 Plus, aparat Canon 3D mark II
CZAS OPRACOWANIA
2 dni w terenie (200 skanów), 20 dni opracowania w biurze
PRODUKT KOŃCOWY
chmura punktów w odcieniach intensity, wizualizacja (film), rysunki 2D CAD, ortofotoplany w kolorach intensity
Ruiny Zamku Krzyżackiego w Toruniu
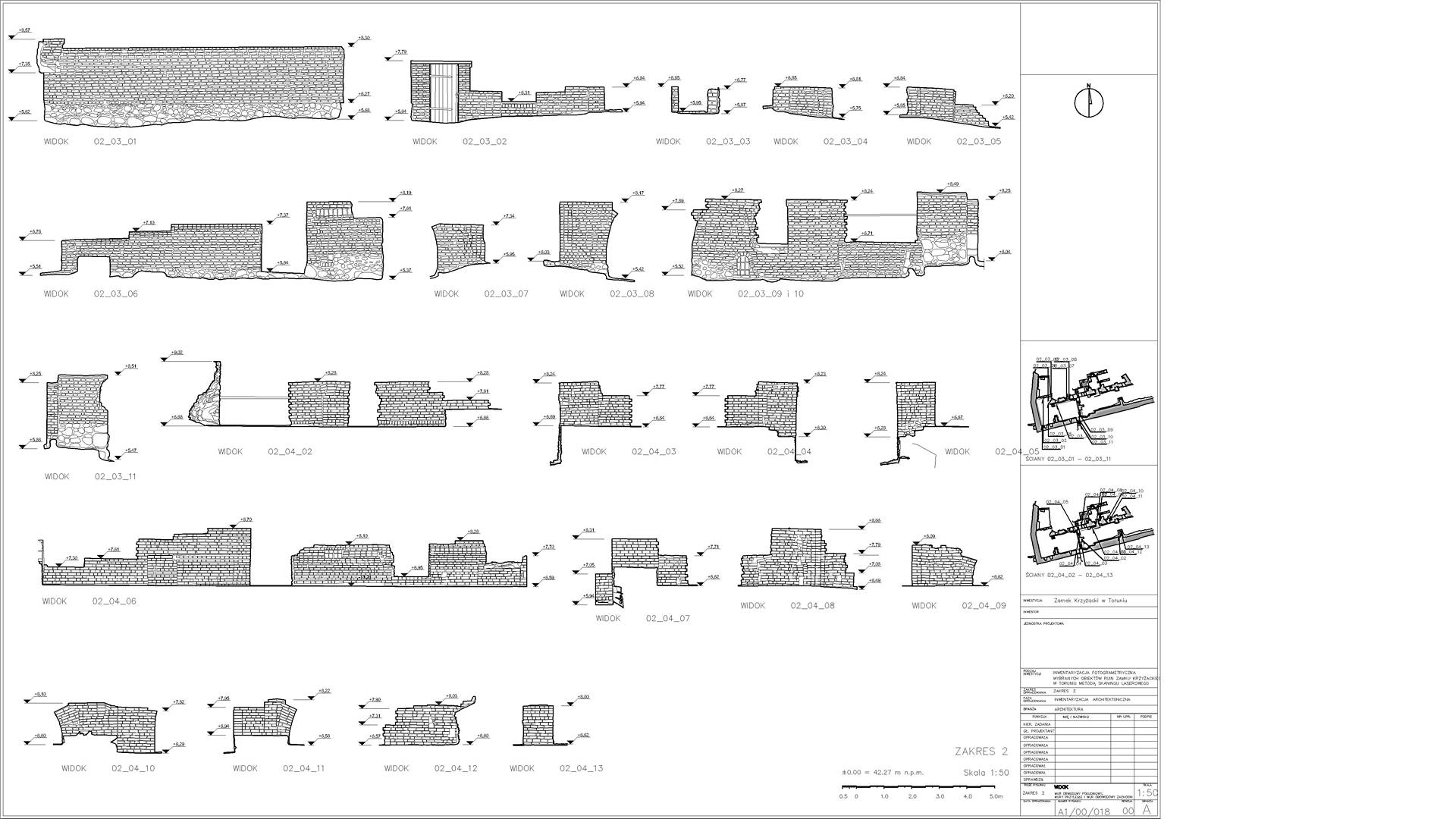
Celem projektu była inwentaryzacja ruin zamku Krzyżackiego w Toruniu. Oprócz samego skanowania klient zlecił wykonanie metrycznych zdjęć – ortofotoplanów – poszczególnych fragmentów muru, w kolorach intensity z chmury punktów. Dodatkowo należało wykonać rysunki elewacji murów wraz z zaznaczeniem poszczególnych kamieni na elewacjach. Wykonaliśmy również wizualizacje chmur punktów obrazujących pozostałości Zamku. Mur główny od strony Wisły (najwyższy i najbardziej okazały) został zeskanowany dodatkowo w barwach RGB.
Kategorie:
















