LOKALIZACJA
Lwów, Ukraina
SPRZĘT POMIAROWY
scanner ZF Imager 5010, tachimetr TCRA 1201 Plus, dron, Canon 5dsr
CZAS OPRACOWANIA
3 dni w terenie, 75 dni opracowania w biurze
PRODUKT KOŃCOWY
połączona chmura punktów, opracowanie CAD, wektorowe rysunki detali, otestruowany model HD mesh
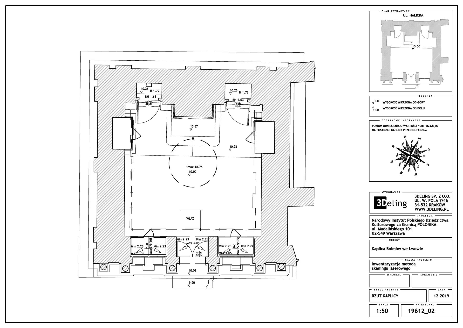
Kaplica Boimów we Lwowie
Przedstawiamy, przeprowadzaną na zlecenie Instytutu Polonika, digitalizację kaplicy Trójcy Świętej i Męki Pańskiej we Lwowie, znanej jako “Kaplica Boimów”.
Finansowana ze środków publicznych inwentaryzacja tego renesansowego obiektu zaowocowała powstaniem opracowania CAD. Wygenerowano również wysoko rozdzielczy, oteksturowany (pixel ok.1mm) model mesh (high-poly) oraz wektorowe rysunki wszystkich, nawet najmniejszych detali.
W trakcie skaningu laserowego wykorzystano dodatkowo dron, aparat fotograficzny na tyczce oraz specjalnie zamontowane wewnątrz obiektu rusztowanie. Dzięki temu udało nam się uzyskać precyzyjne skany laserowe oraz zdjęcia. Tak pozyskane dane wejściowe pozwoliły nam na wykonanie opracowania fotogrametrycznego Kaplicy oraz wspomnianych powyżej produktów 2D i 3D.
Kategorie:























