LOKALIZACJA
Chrzanów, Polska
SPRZĘT POMIAROWY
skaner Riegl VZ-400, Canon 5D Mark II, tachimetr TCRA1101 Plus
CZAS OPRACOWANIA
3 dni w terenie, 20 dni opracowania w biurze
PRODUKT KOŃCOWY
Opracowanie 2d, mesh model, ortofotoplany, ekspertyza konstruktorska, opinia konserwatora
Skaning laserowy mostów kolejowych w Chrzanowie
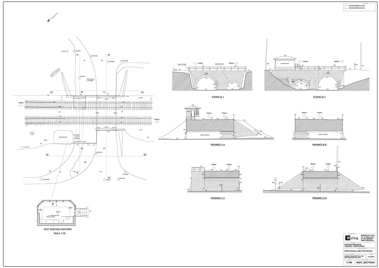
Prace zlecone przez PLK w drodze przetargu, w ramach projektu modernizacji linii kolejowej Oświęcim-Trzebinia. Zlecenie obejmowało inwentaryzacje 4 obiektów – mostów lub wiaduktów w okolicach Chrzanowa, pochodzących z czasów budowy linii kolejowej. Nasze prace były wykonywane zgodnie ze ścisłymi wytycznymi konserwatora zabytków.
Przeprowadziliśmy skanowanie 3D oraz zebraliśmy dokumentację fotograficzną, która na dalszym etapie pozwoliła wygenerować model siatkowy wraz z wysokiej rozdzielczości teksturami. Na podstawie tych opracowań w kolejnej fazie przygotowaliśmy zdjęcia metryczne – ortofotoplany. Bazując na chmurze punktów, wykonaliśmy widoki ścian wiaduktów, jako rysunki w pliku CAD oraz plany sytuacyjne. Całość materiału była podstawą do wykonanie ekspertyzy konserwatorsko-konstrukcyjnej wykonanej na nasze zlecenie.
Kategorie:













