LOKALIZACJA
Baterpol, Polska
SPRZĘT POMIAROWY
skaner Z+F Imager 5010C, tachimetr TCRA1101 Plus
CZAS OPRACOWANIA
1 dzień w terenie (50 skanów), 3 dni opracowania w biurze
PRODUKT KOŃCOWY
Połączona chmura punktów, analiza deformacji i posadowienia
Model pieca obrotowego
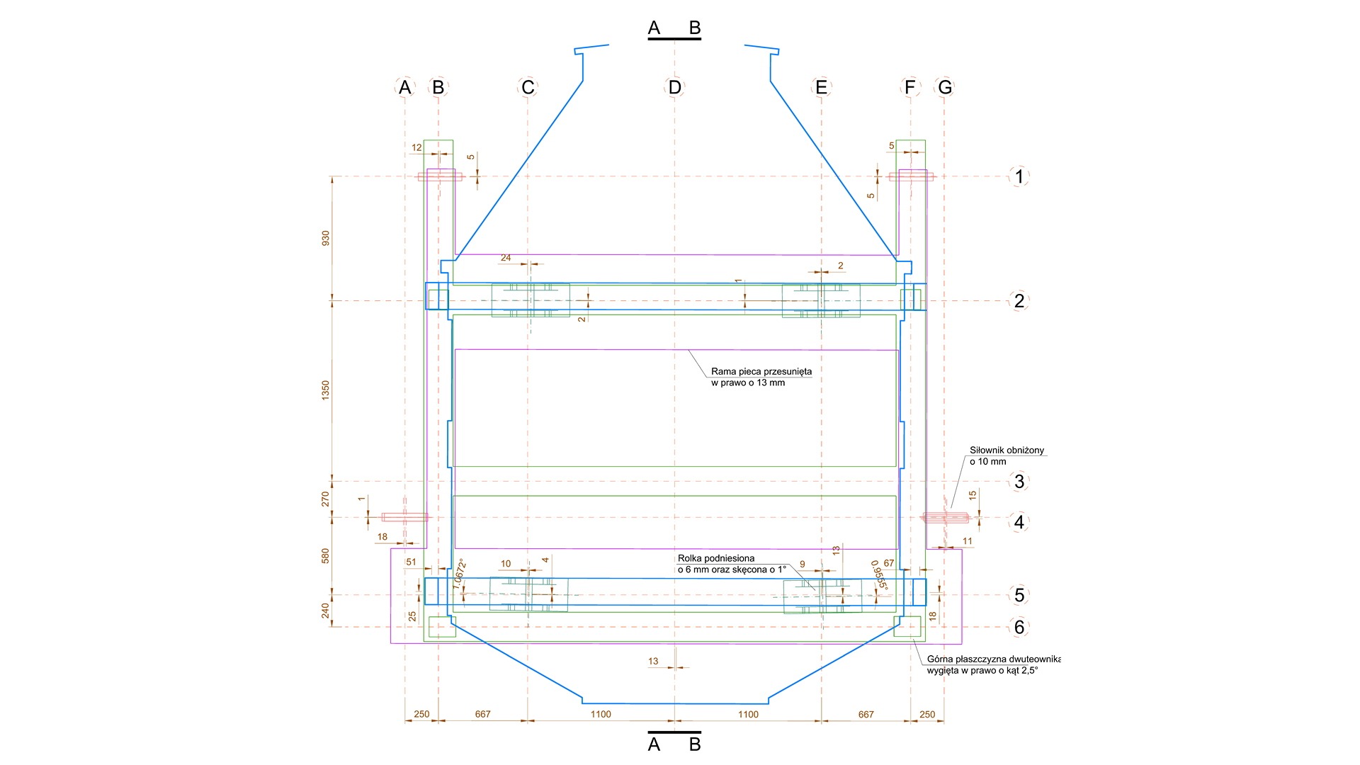
Projekt dotyczył badania deformacji i posadowienia pieca do wytopu ołowiu. Pomiary były związane z awarią mechanizmu zmiany pozycji pieca. Obiekt został zeskanowany w dwóch stanach (pozycjach) pracy – nagrzewania się i wypływu ciekłego metalu, a następnie został poddany analizie geometrycznej. Zbadaliśmy deformacje samego pieca i przemieszczenie elementów konstrukcji zapewniającej ruch pieca.
Badanie wykazało zbyt niskie posadowienie jednej z podstaw konstrukcji w porównaniu z innymi. W raporcie zaproponowano sposób rozwiązania problemu.
Kategorie:










