LOKALIZACJA
Londyn, Wielka Brytania
SPRZĘT POMIAROWY
Laser scanner Z+F 5010, Total Station Leica TCRA 1101+, statywy i inne akcesoria
CZAS OPRACOWANIA
15 dni w terenie – 1500 skanów (1 osoba), 6 tygodni opracowania w biurze (5 osób)
PRODUKT KOŃCOWY
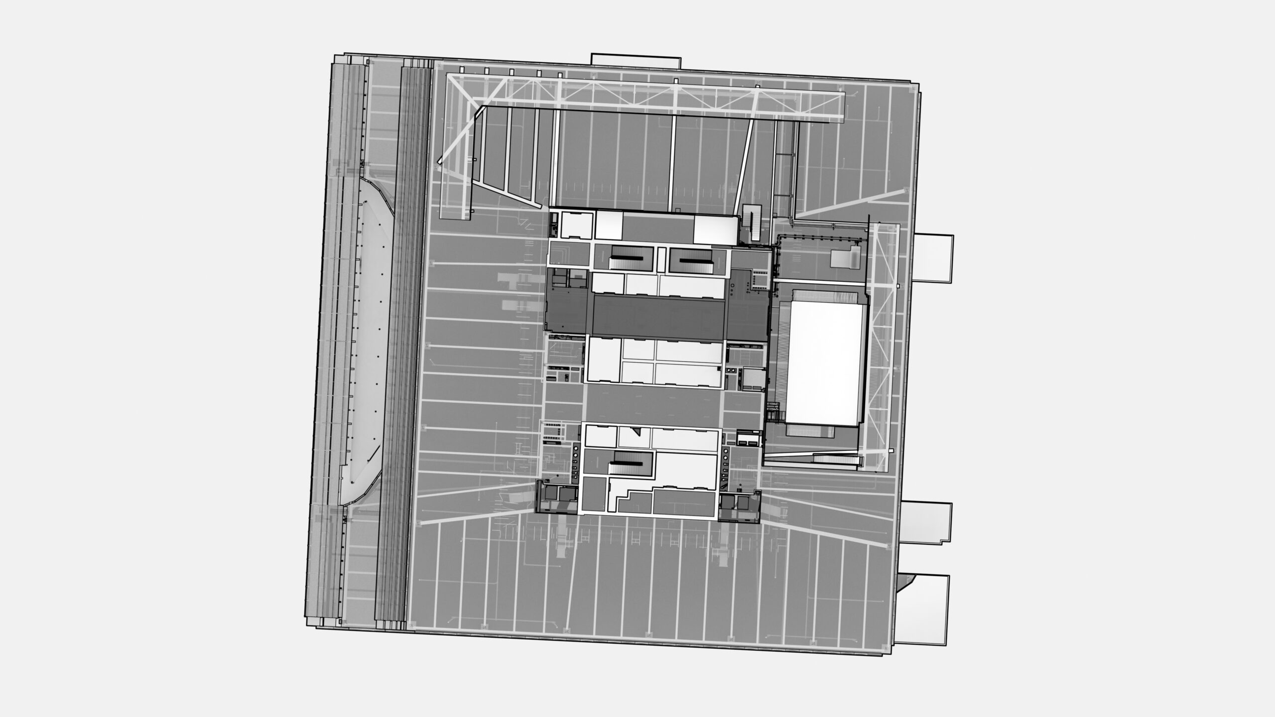
chmura punktów w skali szarości +OS, model BIM, powykonawczy model LOD4 dostarczony w Auotdesk Revit – 15 pięter, dokumentacja 2D wygenerowana na podstawie modelu 3D
Biurowiec w centrum Londynu
Założenia projektu obejmowały skanowanie laserowe 3D, a następnie stworzenie trójwymiarowego modelu BIM nowo wybudowanego biurowca. Klient zlecił przygotowanie powykonawczej dokumentacji jedynie 15, najwyższych pięter budynku łącznie z obszarami: dachu, piwnicy, wszystkich klatek schodowych oraz częścią zewnętrzną budynku. Pomimo ograniczenia zakresu, projekt okazał się być dość duży – wykonaliśmy około 1500 pojedynczych skanów w trybie intensity. Niezależnie od skanowania zostały pomierzone punkty kontrolne które zostały wyrównane następnie wykorzystane do procesu rejestracji czyli łączenia wszystkich skanów w jeden wspólny układ współrzędnych. Pomiar punktów stanowił szczególne wyzwanie z powodu znacznej wysokości budynku.
Model BIM, stworzony na podstawie chmur punktów o przyjętym 4-tym stopniu szczegółowości (LoD 4), pozwalał na wygenerowanie rzutów każdego piętra i przekrojów budynku wraz z odpowiednimi opisami rysunków. Model BIM zawierał elementy instalacji (MEP) zgodnie z specyfikacja LoD 4.
Poniżej prezentujemy wizualizacje efektów realizacji projektu, takie jak zarejestrowana chmura punktów, model BIM z instalacjami MEP i wygenerowane z niego rzuty i przekroje.
Kategorie:














